Description de l'offre
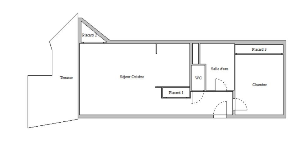
PORT CAMARGUE - SECTEUR PLAGE NORD Dans une superbe résidence a quelques pas des commerces et à 200 m de la plage. Appartement de type 2 pièces traversant entièrement rénové comprenant un séjour avec cuisine ouverte, une salle d'eau, un WC séparé et un chambre. Une terrasse de 13.14 m² exposée SUD-OUEST offrant une magnifique VUE PORT. La surface carrez retenue est de 47.97 m² mais les placards ne sont pas comptabilisés dans la surface carrez, en tenant compte de cet élement la surface au sol est de 51. 77m². Vendu avec un parking privé et un cellier privé en sous-sol mesurant 3.61 m². Double vitrage, store banne électrique. Bien soumis au statut juridique de la copropriété. Nombre de lots : 89 à usage d'habitation
